終於
來了,我最喜歡的北屯,這次朋友帶來了新消息,小弟也立刻跑去實際勘查了環境!
就如之前所預告的一樣,周遭的生活環境真的超級方便,交通也好便利,74號縣道最後一
段(崇德與松竹段)通了以後未來發展肯定會更好!
| 熱騰騰的素模 |
一般建設公司蓋預售屋,都採簡約造型居多(節省建造時間),這次富旺建設採用新古典風
格,巴洛克式的建築(相對厚工,時間較久),富旺建設在台中推案較少,這次為了此案,
規劃許久,因為我到基地現場有問附近的民眾,基地這塊地已經被富旺買下了2~3年!
富旺在2014年也宣告將有7個案子一起釋出(點我,有新聞可看)
交通便利
基地與74號松竹路口約6分鐘車程
顯示詳細地圖
基地與台鐵松竹站及捷運G4站車程約4分鐘
顯示詳細地圖
超級便利的吧,先別說捷運,至少現在看的到的台鐵,還有台中人都知道74號縣道帶给
台中人多麼便利了,通車後在台中去哪邊都會很快了!

學區
距離松竹國小步行約10分鐘(估狗很方便很客觀,我都用他計算),車程也約3分鐘!
北新國中步行約14分鐘,車程約4分鐘!
生活圈
我最喜歡住在走路就可以買到生活用品的地方,因為很便利(其實是很懶),這邊生活圈真的很發達,基地對面是全聯以及全家便利商店,還有黃昏市場,寶雅只要走約5分鐘就到,
大買家北屯店開車也只要4分鐘喔,旁邊還有我從高中就很愛吃的馥漫麵包,基地斜對面是兒童公園,生活圈真的很方便!
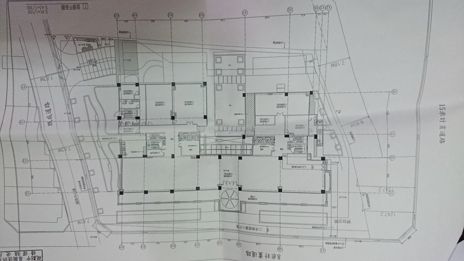
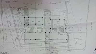
接著來看看簡單的格局圖吧~~
從格局圖可以明顯看出有8棟,A~H棟,其中A~D都為4房(56坪到67坪都有),E~H為3房(43~44坪),公設約29%,都平面車位,大4房有機會可以配到雙車位!
一樓全部都是公設且零店面挑高七米,四拼全部三面採光,衛浴設施都有開窗,據說建商要呈現的感覺是回家就像進去美術館!
當然預售屋也有它的風險在,常常有時新聞也說建商拿了錢不蓋就捲款倒了,所以關於這點要去挑較大的建商,比較有保障,預售屋也因為還沒蓋好,所以很難知道到底蓋好之後哪幾間相對比較優哪幾間相對比較差,對我來說只要價格OK,就算住在四樓也沒關西(貪便宜),因為在這地區吸引我的完全就是交通跟生活機能(我的點),而且都是新蓋的房子!
我每次都會建議買屋就是要看緣份,不管你是投資或者住房,永遠都要做好功課,我的分析不一定是對的,因為一定帶有我的主觀,還是建議各位要親自去看看!!!
目前價錢還沒開出來,因為還未公開銷售,有想要一起討論可以留下資料︿︿
大新竹房屋(租、買、售)資訊站
- 不管你是包租公還是自住客-你必需知道的房地產小常識-(貸款篇)估算屋主取得成本
- 5個零成本利用網路就能打造的被動收入方法!
- 不管你是包租公還是自住客-你必需知道的房地產小常識-(貸款篇)精華區老屋申貸較容易
- 原來富爸爸現金流中的方法也可以用在現實生活中,只是之前沒發現,看完17部理財影片後才發現,將以前的看待金錢的觀念完全打翻,
- 不管你是包租公還是自住客-你必需知道的房地產小常識-(貸款篇)銀行鑑價未必等同買賣價
- ETF是什麼?ETF怎麼買?為何ETF投資在台灣這麼夯?新手不能不知的ETF投資4大常識!用1檔ETF真的可以為自己存到18%嗎?
- 不管你是包租公還是自住客-你必需知道的房地產小常識-(貸款篇)留意老屋建築結構
- 查理芒格精選語錄全集 窮查理寶典查理芒格智慧箴言錄巴菲特的導師與人生合伙人的智慧箴言投資思想家
- 不管你是包租公還是自住客-你必需知道的房地產小常識-務必親自到現場一探究竟
- 不管你是包租公還是自住客-你必需知道的房地產小常識-(貸款篇)銀行貸款用語;"成數"到底是什麼?
- 不管你是包租公還是自住客-你必需知道的房地產小常識-(貸款篇)老屋,中古屋貸款年限
- 竹北-興富發【水公園】買的起的水岸景觀宅
- 竹北大遠百商圈-佳泰世紀城 號稱竹北最強首購,2房只要528萬起....
- 【完整分析】富爸爸現金流遊戲心得及如何利用零成本做生意+從現金流遊戲來思考如何(不用錢)建立被動收入?
- 申辦房貸六個步驟和房貸審核標準及所需文件
- 最近看到的新聞 「租屋 買屋 你選哪一邊?」
- [竹北高鐵]新竹竹北建案-坤山禾和,施工進度
- 竹科COSTCO旁不到700萬的全新預售兩房,您有興趣嗎? 興富發關埔最新潛銷案
- 信用不良可貸款、信用瑕疵可貸款嗎? 貸款專家沒說的秘密 "貸款加油站"一次完整破解給你看!!!讓你不再為貸款傷腦筋
- 中古車貸 最高可貸權威150%
- 房貸流程實況
- 免費小工具-劃格局超好用的軟體
- 遇到"失業"你會害怕嗎?現金流遊戲完整說明及遊戲玩法+現金流遊戲下載繁體中文版,富爸爸現金流遊戲pc版 如果你還不知道這個秘密,那你注定要窮一輩子!!!
- 房地產相關契約範本-租屋契約範本
- 理財型房貸到底是什麼?
- 中古屋看屋日記-新竹-竹東-旭家一期
- [貸款小技巧之細說貸款名詞] 負債比的意義-
- 竹科COSTCO旁不到700萬的全新預售兩房,您有興趣嗎? 興富發關埔最新潛銷案
- 竹北看屋筆記-[竹北河岸第一排]竹北建案-文鼎美漾
- [台中看屋日記] 台中市西區精誠29街3樓
- 大河戀高樓視野3房
- 新竹昌益二重埔造鎮計劃【昌益星都心】 開始潛銷開賣了嗎?
- [竹北看屋筆記]「東陞墅日子」猜猜看,我是不是這間的女主人呢?
- 銀行貸款怎麼辦??讓貸款V怪客告訴你,該如何不被銀行婉拒!!
- 信用瑕疵到底能不能貸款 遲繳 控卡 強停到底有沒有銀行能貸款??
- 第一次驗屋學超多-嘉璟建設-竹北臻觀驗屋
- 其實小白並沒有你想像中這麼難貸款
- 信用卡一直繳最低會怎樣?普卡、金卡和白金卡又有什麼區別 弄懂信用卡賬單分期和現金分期,保證你再也不敢拖欠卡費!
- 銀行婉拒或退件之銀行貸款困難案件!
- 沒有工作沒有收入這樣還可以貸款嗎?現在有四招可以滿足你
- 徵信沒問題就能成功貸款嗎?為什麼信用不良或是信用瑕疵也能貸款?
- 下雨天南風天為什麼家中會出現牆壁流汗及地板潮濕嚴重情形呢?家中太潮濕有什麼壞處?該如何有效解決下雨天潮濕的情況呢?
- 找到二房東好物件前,最常經歷的5件事,其中第2項最常讓我欲哭無淚
- 房地產「租賃時代」到來,未來10年走勢?房產達人:房價下跌、租金持穩
- 新竹縣-竹東最佳旅遊景點TOP 10
- 青年房租補貼9月上路!單身、婚育,各縣市不同級距一次看清楚:最高可領5000元,只要符合1條件!婚育家庭租屋最高補助5千元
- 108年度低收入戶、中低收入戶審核標準 收入戶、中低收入戶申請時間及審核時間要多久呢? 申請收入戶、中低收入戶需要準備那些文件呢?
- 5分鐘看懂房產達人如何投資「法拍屋」 讓你快速了解什麼是「法拍屋」?及購買法拍屋的必備條件
- [看屋筆記]市價千萬的房子可以用4折(400萬)買到 原來房地產投資還有法院拍賣屋這一招
- [竹東二重] 富米建設「ECO TOWN 生態城」(大樓)介紹
- 什麼! 688萬,可以買到竹北有天有地的全新透天厝???
- [興富發-公園1號] 538萬起,我應該沒看錯吧!
- 竹南頭份~~看屋日記12-1(瑞明建設-杉漾峇里島)
- [高雄楠梓] 居興建設「居悅」
- 新竹縣-竹東最佳旅遊景點TOP 10
- 109年度低收入戶、中低收入戶審核標準 收入戶、中低收入戶申請時間及審核時間要多久呢? 申請收入戶、中低收入戶需要準備那些文件呢?










留言列表

