在竹南頭份高品質的住宅大樓
漸漸走向高單價、小坪數的規劃
未來具有高品質的建材建案
價格是否也一去不回了呢?
![]() |
| 帝王京品 廣告刊版 |
達程建設於今年初推出了50多坪的小豪宅“帝王京品”,接待中心位在中央路與公園五街口,與上一批建案“皇鼎盛世”一同銷售,這次“帝王京品”的建案地點位在維新路與新北街附近,大約在附近的新成屋“首馥”後方,建案距離竹南的明星學區照南國小和照南國中,走路上學只需要10分鐘以內,前往藝文中心觀賞文藝活動或是到運動公園散步運動,也相當方便。
![]() |
| 基地位置圖1 |
基地位置圖2
“帝王京品”屬於小規模的社區大樓,全區加店面總戶數只有40戶,規劃成3~4房50坪左右的格局,延續著上一批建案“皇鼎盛世”高品質建築,這次產品設計成綠建築大樓,讓整棟建案能源具有節能減碳功用,並且營造出室內清新空氣的環境,至於建材方面樓地板厚度皆為22公分,客餐廳部分採用有靜音功能的中空樓板,地磚使用德國超耐磨木地板,廚具與衛浴分別為櫻花牌廚具與TOTO品牌,雖然“帝王京品”的單價與總價在竹南頭份市場相對不便宜,但是這類型的小豪宅可說是一分錢一分貨。
以下是建案基本資料與參考圖面(以下資料僅供參考而已,實際需以建商提供的資料為準)
|
所在地區:
|
竹南
|
建設公司:
|
達程建設
|
|
總戶數:
|
住家39戶、店面1戶
|
樓層:
|
地上14層、地下2層
|
|
房間規劃:
|
3~4房
|
公設比:
|
29%左右
|
|
坪數:
|
54~56坪
|
價格:
|
每坪24萬起
|
|
接待中心:
|
中央路、公園五街
|
基地位址:
|
維新路、新北街
|
![]() |
| 帝王京品 建案基地 |
![]() |
| 帝王京品 3~13樓平面圖 |
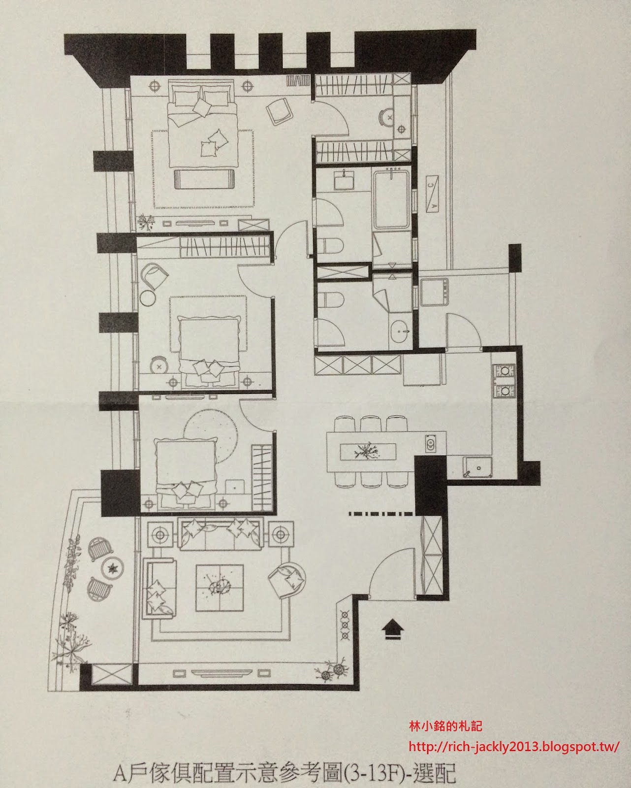
![]() |
| A戶傢俱配置示意參考圖 |
![]() |
| B戶傢俱配置示意參考圖 |
免責聲明 ◎本網站所提供之資訊或意見,不構成任何買賣有價證券或其他投資商品之要約、宣傳,引誘等事項。 ◎本網站盡可能隨時確保所提供資訊的準確性和即時性,但不對資訊的準確性或完整性提供任何擔保或表述。在此聲明,本網站可能含有不完整、錯誤或已經過時的資訊,使用者如據以投資,責任完全自負。 ◎不得將本網站之內容用於商業或其他不法之目的,如有其他使用者利用本網站導致糾紛與損害,一切與本網站無涉。
全站熱搜









留言列表

